Reference na Google

Vítejte na stránkách nejlépe hodnocené realitní kanceláře na Moravě

Hodnocení na Firmy.cz zjistit více

Jsme nejlépe hodnocená realitka na Moravě


Reference na GoogleHodnocení na Firmy.cz zjistit více

Dům 2+1 na prodej

Ke Sklepu - Znojmo

Objednat prohlídku

Základní přehled

Chci nabídku na hypotéku
PRODÁNO
Nemovitost Dům
Dispozice
Konstrukce Cihla
Užitná plocha 133 m2
Plocha zahrady 62 m2
Stav nemovitosti Dobrý
Ulice Ke Sklepu
Město Znojmo
Lokace Klidná část obce
PENB třída G - Mimořádně nehospodárná
PENB ukazatel -
Ev. číslo 2997

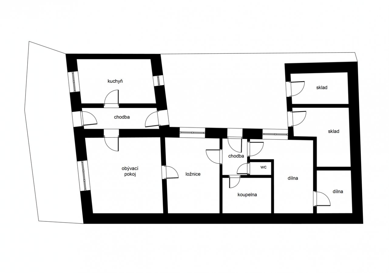
Ke koupi vám nabízíme rodinný dům s dvorkem v klidné části města Znojma v Příměticích. Řadový rodinný dům o dispozici 2+1 je ideálním bydlením pro pár nebo menší rodinu. Vytápění zajišťuje kondenzační kotel, který byl instalován na podzim v roce 2024. V roce 2013 proběhla rekonstrukce oken, střechy a fasády. Na dvorek je možné vstoupit z předsíně nebo ze zadní strany domu. V zadní části domu se nachází prostorná dílna a tři další místnosti, které nabízí dostatek úložného prostor. Dům je napojen na všechny inženýrské sítě: elektřinu, plyn, vodovod a kanalizaci. Přímětice jsou městskou částí Znojma, která nabízí klidné prostředí pro bydlení i veškerou občanskou vybavenost. V okolí rodinného domu máte vše v pěší vzdálenosti a na dosah. V blízkosti domu je kompletní občanská vybavenost - MHD, obchody, lékárna, restaurace, lékaři, školka a základní škola. Jedná se o velmi dobře dostupnou a zároveň klidnou lokalitu. Zavolejte mi, ráda vám poskytnu podrobnější informace, nebo se domluvíme na prohlídce.

CHCI VÍCE INFORMACÍ O MOŽNOSTECH VÝHODNÉHO FINANCOVÁNÍ.

Rodinný dům 2+1 v Příměticích, přijďte se podívat!

Ing. Natálie VAŠÍKOVÁ

Doplňkové informace

  • Školka
  • Škola
  • Pošta
  • Lékař
  • Místní úřad
  • Nák. Centrum
  • MHD
  • IDS
  • Autobus
  • Vlak
  • Silnice I.tř
  • Dálnice
  • Fotbal
  • Hokej
  • Koupaliště
  • Divadlo
  • Kino
  • Restaurace
  • Voda: Dálkový vodovod
  • Elektřina: 230V, 400V
  • Plyn: Plynovod
  • Kanalizace: Veřejná kanalizace
  • Topení: Lokální plynové
  • Ohřev vody: Kondenzační kotel + zásobník

Mapa

Podobné nabídky
sleva
Chata na prodej

Chata na prodej

2 749 000 Kč
70 m2

DŮM Štítary

sleva
Chata na prodej

Chata na prodej

2 699 000 Kč
70 m2

DŮM Štítary

sleva
Chata 5+1 na prodej

Chata 5+1 na prodej

2 949 000 Kč
130 m2

DŮM Bítov

Dům 3+1 na prodej

Dům 3+1 na prodej

2 490 000 Kč
225 m2

DŮM Božice

RD 7+1 na prodej

RD 7+1 na prodej

2 590 000 Kč
311 m2

DŮM Němčičky

Zpět na hlavní stranu